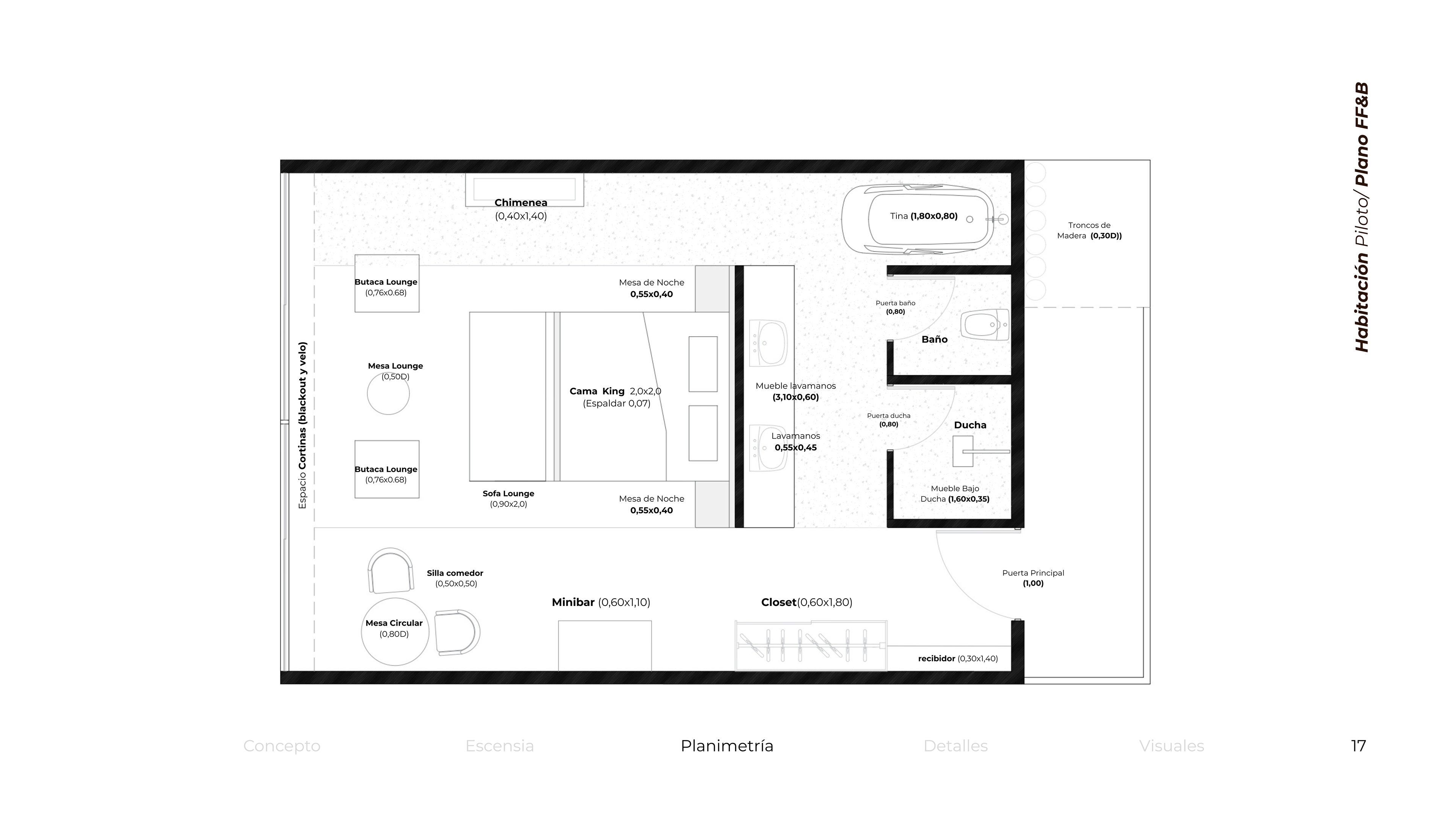
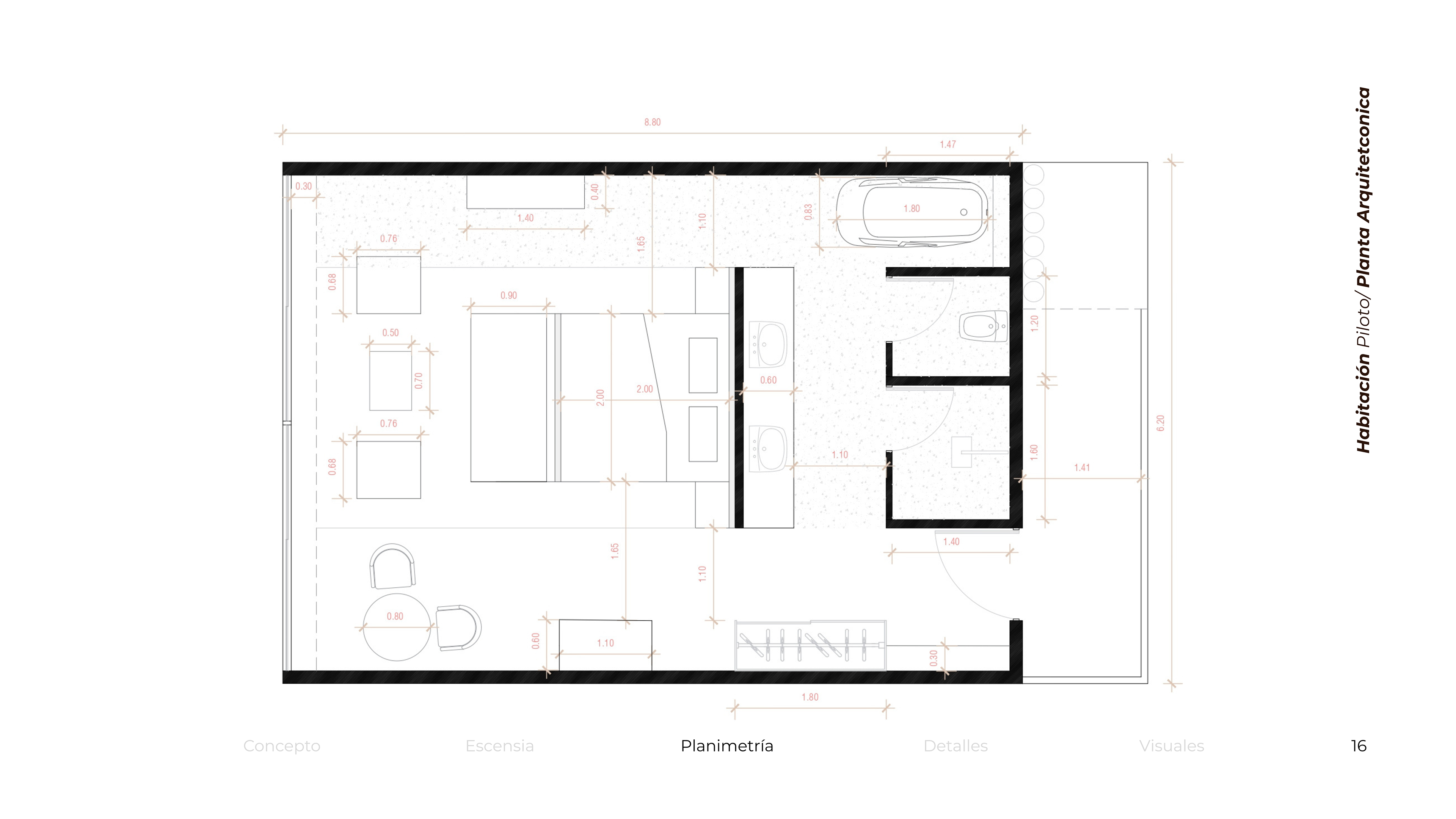
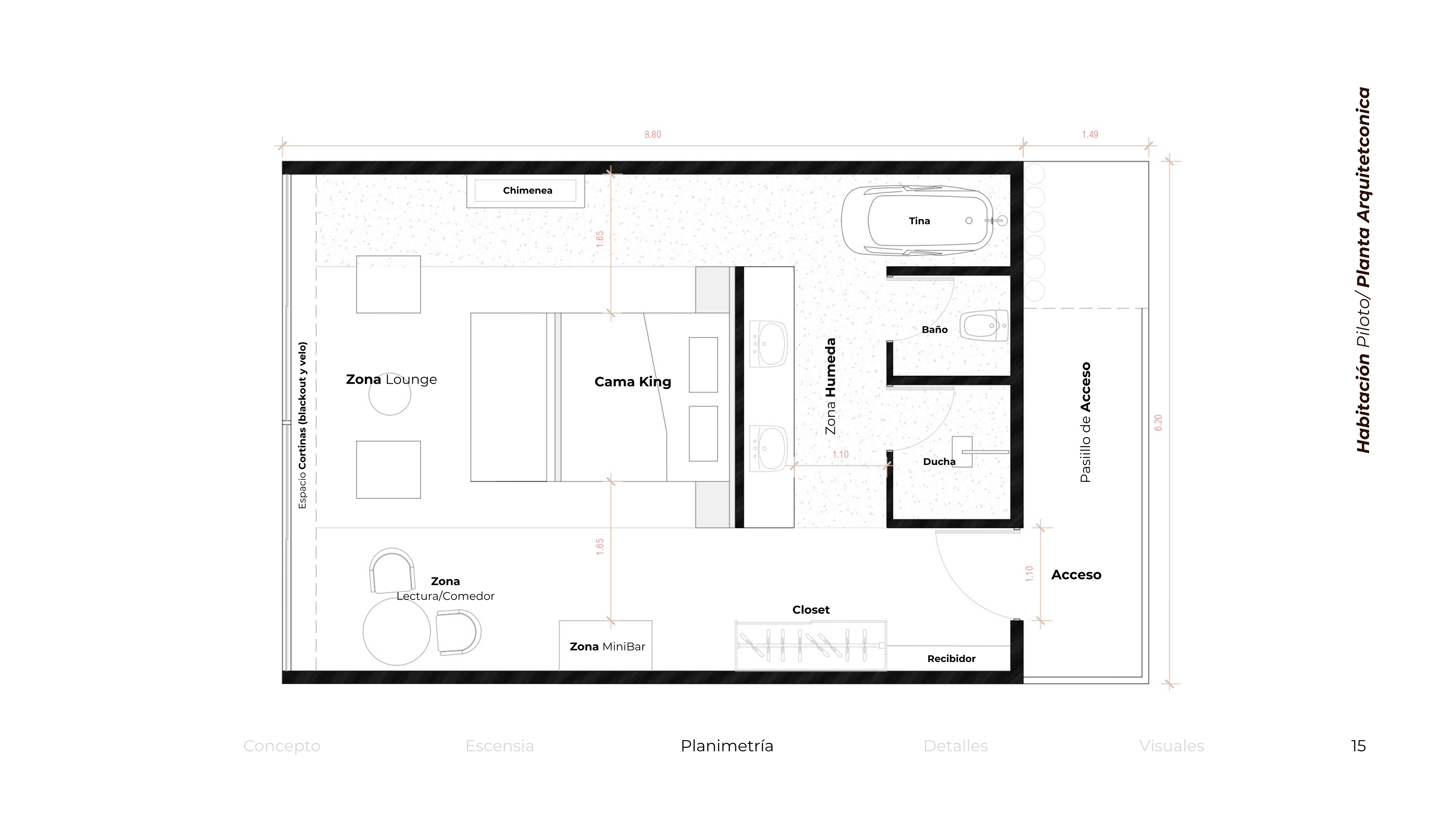
Aman Patagonia es un proyecto que explora la esencia del lujo silencioso en diálogo profundo con la naturaleza austral. Partiendo de la filosofía Aman—centrada en la serenidad, la experiencia sensorial y la conexión auténtica con el entorno—este trabajo propone un concepto de diseño que respeta y enaltece la majestuosidad del paisaje patagónico.
El desarrollo integra materiales nobles, atmósferas cálidas y una narrativa espacial que busca fundirse con el territorio, priorizando el bienestar, la contemplación y la sofisticación minimalista. Este proyecto final sintetiza investigación, sensibilidad estética y criterios de diseño contemporáneo aplicados a la hospitalidad de alta gama.

You may also like

Back to Top