home
about me
work
experience
CV
contact
home
about me
work
experience
CV
contact
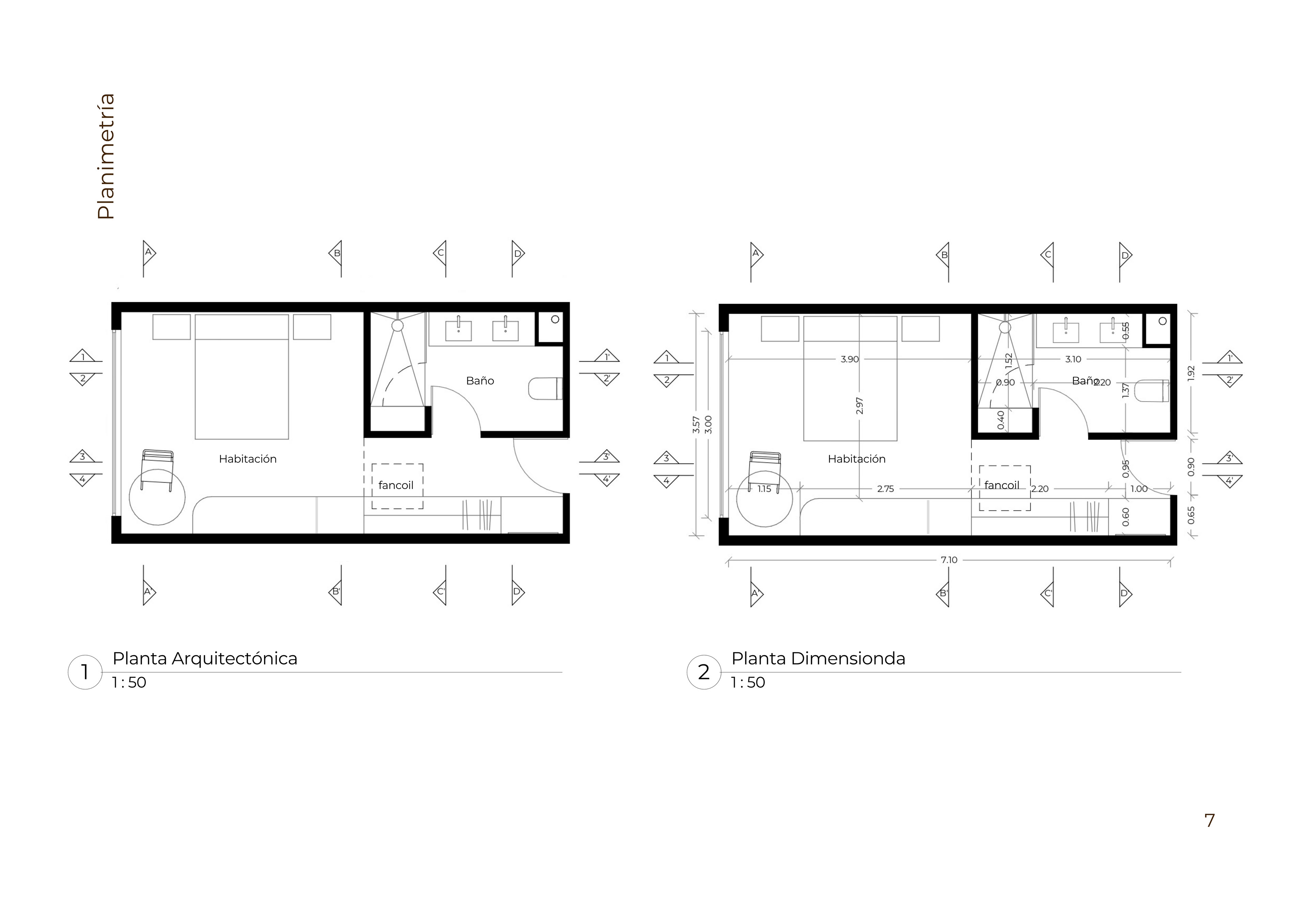
Diseño Hospitality I Hotel Retro
You may also like
Diseño Hospitality I Hotel Raíces
2025
Diseño Hospitality I Hotel Aman patagonia
2025
Diseño de Distribución y Logistica I Restaurante Italia
2025
Diseño de Concepto I Restaurante Kagura
2025
Diseño de Iluminación I Hotel las Jaras
2025
Diseño de Restaurante MX
2025
Diseño de Cabañas Modulares
2025
Diseño Experiencial I Hotel Encanto
2025
Diseño de Eventos
2025
Diseño de Restaurante I Restaurante La bola
2025
↑
Back to Top